2025년 1월 아파트 분양이 56% 급감한다는 소식을 들으셨나요? 이런 가운데 방배동 래미안 원페를라의 일반분양이 예정되어 있어 관심 있는 분들께 상세한 정보를 제공합니다. 일정 메모 후 청약 신청하시기 바랍니다.

주소 및 위치
- 위치: 내방역과 이수역 사이
- 주소: 서울특별시 서초구 방배로33길 58-5, 서초구 방배동 818-14 (지번)
건설사
- 건설사: 삼성물산(주)
분양시기
- 분양시기: 2025년 1월 17일
단지규모

- 총동수: 22층 총 16동
- 일반분양 세대수: 총 1097세대 중 482세대
- 59m² (157세대)
- 84m² (265세대)
- 106m² (56세대)
- 120m² (4세대)
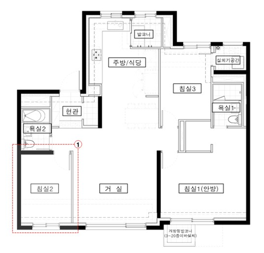
원페를라 국민평형 평면도

예상 분양가

- 예상 분양가: 평당 6,800만원 ~ 7,000만원 초반 예상
- 59㎡: 약 17.08억
- 84㎡: 약 23.22억
청약 정보

- 청약 자격: 서울/수도권 거주자, 세대주, 청약통장 가입 2년 경과, 예치금 충족 등 (모집 공고 확인 필수!)
- 청약 일정:
- 모집공고: 2025년 1월 17일 (예정)
- 청약접수: 2025년 2월 4일 (예정)
- 당첨자 발표: 2025년 2월 12일 (예정)
- 계약일: 2025년 2월 25일 ~ 3월 2일 (예정, 변동 가능)
- 청약 방법: 청약홈(상단 배너 클릭)
기타 정보
- 전매 제한: 3년 예상
- 재당첨 제한: 10년
- 투기과열지구: LTV 50% 적용
- 계약금: 20% 예상
- 중도금 대출: 60% 예상
- 입주 시 필요 현금 (84㎡ 기준): 8.95억 + 추가비용 (취득세, 옵션 등)
방배동 래미안 원페를라 분양에 관심 있는 분들은 일정에 맞춰 준비하시기 바랍니다. 2025년 1월 분양 시장의 급감 속에서도 이번 분양은 큰 관심을 받고 있습니다.
2024.10.11 - [분류 전체보기] - 2024 건강검진 연기 신청방법과 과태료 피하는 법
2024 건강검진 연기 신청방법과 과태료 피하는 법
2024년에 만 20세 이상의 성인 중 짝수년도 출생자들은 국민건강보험공단에서 실시하는 건강검진을 받아야 합니다. 검진을 받지 않으면 최대 300만 원의 과태료가 부과될 수 있습니다. 그렇다면
mm.luckyblue.pe.kr
2024.12.24 - [분류 전체보기] - 9호선 연장 강동하남남양주 기본계획 승인 2031년 개통
9호선 연장 강동하남남양주 기본계획 승인 2031년 개통
말도 많고 탈도 많았던 9호선 연장 계획이 드디어 공식적 발표 되었습니다. 카더라 통신이 아니라 국토교통부에서 발표한 내용입니다. 관련 내용 아래에서 확인 하시기 바랍니다. 황금 라인인 9
bluepants.tistory.com
2024.12.11 - [분류 전체보기] - LG전자 구독료가 뭔가요?
LG전자 구독료가 뭔가요?
LG전자의 구독 서비스 매출이 1조 원을 돌파했다고 합니다. 구독 서비스란 무엇인지, 왜 많은 사람들이 이용하는지, 그 장점과 단점을 알려드립니다. LG전자의 구독 서비스에 대한 더 많은 정보는
mm.luckyblue.pe.kr